首页
关于我们
产品展示
控制柜
变频器
传感器
低压电气
非标设备
工控机
PLC
应用案例
新闻动态
技术支持
联系我们
首页
-
产品展示
-
传感器
-
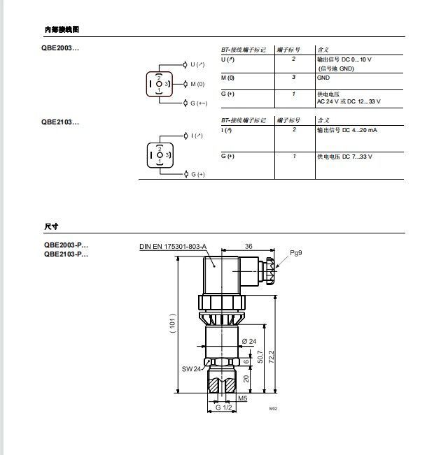
西门子压力传感变送器
触摸屏
工控机
传感器、仪表
工程项目
非标设备
低压产品
变频器
控制柜
控制器(PLC)
西门子压力传感变送器
上一条:
西门子 SIEMENS V20系列 变频器
下一条:
施耐德LC1D系列接触器
相关推荐
西门子风管式温湿度传感器
欢迎留言
提交
给我留言
18030279209